Tenants Are Hacking the Building
Multifamily residents are using consumer AI and open tools to work around building systems and regain control of how their apartments operate
Zoning reforms are unlocking a new kind of infill development that pairs affordability and density
Donovan Adesoro has been developing small lot subdivisions in the Houston and San Diego markets for the past five years. He is now Head of Development at infill housing developer BuildCasa.
Over the past few years, zoning codes in American cities have begun to catch on to the power of an underutilized pro-housing policy: the small lot subdivision. These subdivisions allow for urban lots to be cut up, or subdivided, into smaller pieces. New homes can be built on those new parcels, effectively increasing the density of the area.
While these small lot subdivisions function as a type of upzoning—a developer can now create more units in the same amount of space—those new units still have to follow underlying zoning which often exclusively allows single-family structures. This nuance has a big impact on what can be built in these small-lot projects and can lead to some very unique outcomes.
I have been doing small lot subdivisions for the past several years for myself as well as on behalf of BuildCasa. This letter will tackle some of the mysteries around small lot subdivisions, a crucial tool to address the housing crisis and an untapped opportunity for aspiring small developers. We’ll cover:
Thesis Driven is a reader-supported publication. To receive new posts and support our work, consider becoming a free or paid subscriber.
It's legally possible to apply for a small lot subdivision in almost any city. But in many jurisdictions, these subdivisions require neighborhood input and are at the discretion of the city, so the local government can deny your project if they don’t like what you posted about them on Twitter a few weeks ago.

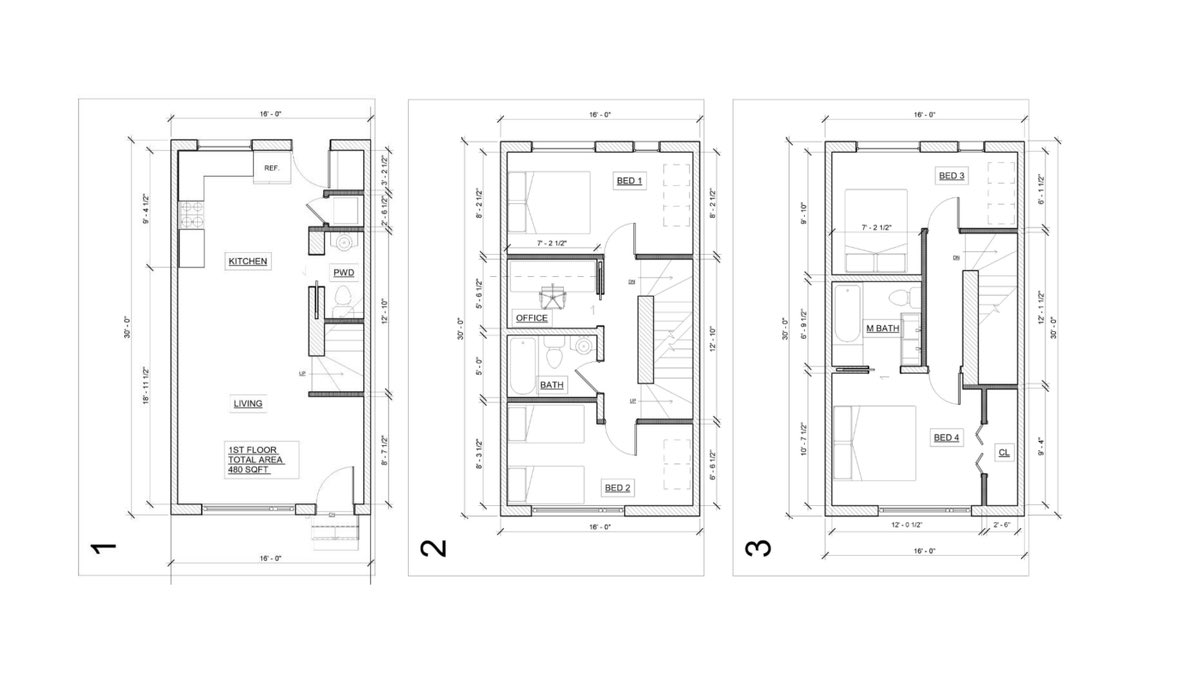
The key clause in a city’s zoning code is the required minimum lot size. In general, the smaller the minimum lot size, the more development opportunities will be available. In my experience, the best opportunities are usually within densely populated neighborhoods where one can build on lot sizes of 2,000 square feet or less. In practice, this means small lot subdivision developers often end up building townhomes.
Why townhomes? On average, the median single family lot is at least 6,000 sqft, so a 2,000 sqft minimum lot size implies a developer would be able to at least triple the number of homes on an existing lot. And if each of those subdivided lots are 2,000 square feet in size, a developer must build vertically to provide the prospective buyer with more than a few hundred square feet of living space while maintaining required setbacks, lot coverage, and parking. That usually translates to a narrow structure, perhaps two or three stories tall—in other words, a townhome.
The type of home that can be built will determine who the likely end-buyer or -renter will be. A large number of stairs in a home may rule out elderly buyers, for example. Targeting a younger buyer, on the other hand, requires developing in more desirable locations. Due to the limited number of new units developers can typically add, small lot subdivision tends to work best for a build-to-sell strategy.
In general, small lot subdivisions work best in densely-populated, desirable neighborhoods. Prospective homebuyers are more likely to accept a much smaller yard and smaller house if the neighborhood has a lot of characteristics and amenities that they can’t get elsewhere: short commutes downtown, walkability, good schools, or access to restaurants and parks.

Here’s a back-of-the-envelope example of a hypothetical small lot subdivision deal:
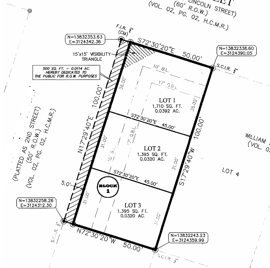
There is a site 15 minutes from Bourbon Street in New Orleans—a dense, popular neighborhood where the average home price is around $500,000—that was recently rezoned to allow up to three homes on each lot. The site is a 5,000 square foot corner lot. For $150,000, a developer would buy the lot, split it into three, and build three 1,800 square foot homes, each priced at $400,000.
For anyone looking for a relatively affordable home purchase in the area, these townhomes would be an attractive option. Although their backyards may be smaller, these townhomes are $100,000 cheaper than all the other homes on the market. That lower price point will attract buyers who wants to live in the neighborhood but may only be pre-approved for $450,000—not quite enough for a traditional home in the area but sufficient to afford and townhome and get on the property ladder.
It’s not rare for these homes to see double or triple the number of showings and views. This scenario plays out over and over again in cities where savvy developers can undercut the price of their competition while still maintaining a 15-20% profit margin on each build.
A few years ago, a wholesaler sent me a Houston development site he had under contract and was looking to assign to a developer. The seller was asking around $200,000 for a 5,000 square foot corner lot in an area surrounded by new construction. The $200,000 price tag was on the upper end of the typical price range for that neighborhood and lot size.
I first analyzed the site for a potential duplex development. But most of the duplexes I had built to date had been on cheaper and in more suburban locations. The high cost of such a small lot would mean I’d have to sell an expensive duplex for the Houston market.

But given the recent sale comps in the market, it turned out the right thing to build on this lot wasn’t duplexes but 3x three-story, 1,800 square foot single-family homes.
Single family homes of that size give buyers plenty of space without risking overbuilding. At the same time, we made sure to fit as many units as possible on the lot to get the most out of the square footage and while keeping the homes affordable and competitive.

We ultimately bought the lot for $170,000 and paid about $12,000 to replat it into three pieces. So our basis on the build was $61,000 per lot in an area where new builds of this size were selling for around $375,000.
Generally, I try to keep the cost of land around 15-20% of my estimated exit price. The vertical build cost on something like this in Houston is around $130 per square foot for the level of finishes I chose, which is aimed at a first-time home buyer. We are taking the completed homes to market soon and anticipating the following:
In the alternative duplex scenario—assuming the same square footage and build costs—we would be all in the build for over $400,000 meaning the price of the new units would need to sell over $500,000 to make the numbers work.
Using a small lot subdivision, we were able to reduce the price and make it more affordable to the end-buyer while also ensuring it was worth the headache of developing it.

Fortunately, most infill developments have the advantage of utilities already being nearby. But that doesn’t mean the utilities are in the right place or have sufficient capacity to handle any project. Developers will want to have a good handle on where a project’s electricity, water, sewer, and cable will run as well as ensure those utilities have sufficient capacity.
While most small developments won’t need to upgrade water and sewer lines—which would likely kill a project like this—I have generally had to upgrade my sites’ electrical capacity to support our projects. While this can be as simple as having the utility company upgrade the transformer for the pole that is closest to the property, it may require having an entirely new pole dropped in front of the development.
I’ve mitigated this in the past by immediately scheduling a site visit from the utility company while under contract on the property. Most utility companies won’t be able to get out there for at least six weeks, at which point the deal would likely have already closed
Finally, developers should consult a land use attorney—or whoever is doing the subdivision—to understand feasibility prior to going hard on contract. Every jurisdiction has its own nuances that can limit a development site’s potential: deed restrictions, overlays, setback and parking requirements, and other stipulations that can prevent a developer from executing on his or her plan.
Small lot subdivision opportunities are everywhere for developers willing to look. Daunting for many small developers yet too small for large, experienced firms, small lot subdivisions are a great way for developers to level up their game.
I moved from Houston to Oakland, California in late 2024 due to two reforms passed by the State of California in 2021 that made small lot subdivisions far more feasible:
But California is hardly the only state to adopt progressive, pro-housing policies like these. These types of reforms are appearing in municipal legislation in many US cities experiencing a housing crisis.
In my hometown of St.Paul/Minneapolis, the city council recently eliminated single-family zoning by allowing up to four units on lots that previously only allowed one. In Austin, TX, residents voted to allow up to three homes on every lot, which makes it possible to build something exactly like my Houston project. Over the past six months, upzoning reforms in both Massachusetts and Maryland have passed that allow multi-unit developments on land that was previously restricted to single-family homes.
If more small developers understood that small lot subdivisions offer an opportunity to construct new housing in desirable areas that can sell at very competitive prices, we’d be able to make serious headway on growing the country’s housing supply. More walkable, affordable, and environmentally sustainable communities are right within our grasp — what’s stopping us?
—Donovan Adesoro
Thanks for reading Thesis Driven! This post is public so feel free to share it.
Covering the future of real estate and the people creating it